Кратко о заключении
Ленинградская область
Частный дом
09.07.2025
36 дней
139 страниц
192 фото
Когда на участке уже стоит дом, у заказчика часто возникает опасная иллюзия: главное уже сделано, осталось закрыть несколько недоделок и можно выходить на финиш. На практике именно на этой стадии и вскрываются самые серьезные проблемы. За внешне собранной коробкой нередко скрываются незавершенные работы, ошибки по несущим узлам, увлажнение конструкций, нарушения по монтажу проемов и дефекты, которые уже влияют не на внешний вид, а на надежность дома.
По таким объектам спор почти никогда не сводится к одному недостатку. Обычно приходится разбираться сразу в трех вещах: что подрядчик действительно выполнил, что так и осталось незавершенным и какие нарушения уже перешли границу обычных недоделок. В этом случае мне как раз и нужно было установить фактическую степень готовности домокомплекта, проверить качество смонтированных узлов и понять, можно ли считать результат надлежащим исполнением договора.
С какой проблемой по домокомплекту ко мне обратились и что нужно было установить
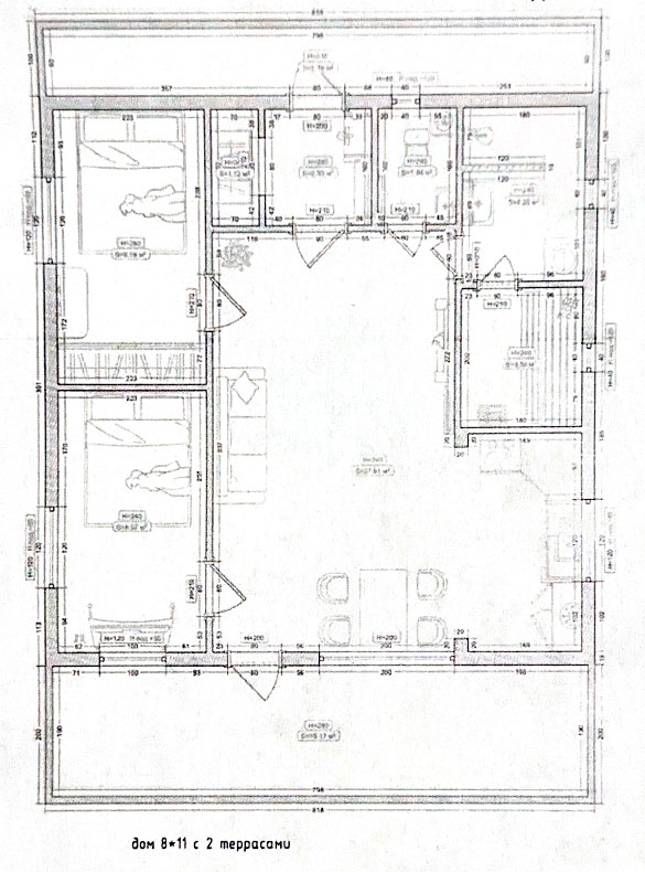
Ко мне обратились после спора по домокомплекту КД/ДК-88 размером 8×11 с двумя террасами, который монтировали на участке в Приозерском районе Ленинградской области. Заказчика интересовал очень конкретный результат: что подрядчик реально сделал по договору и в каком состоянии объект находится на месте.
Передо мной поставили два вопроса:
- Завершены ли работы по изготовлению, доставке и установке домокомплекта?
- Соответствует ли выполненное договору, ГОСТ, СНиП и СП, и являются ли выявленные недостатки существенными?
В таких спорах этого и нужно добиваться с самого начала. Пока объект не разложен на конкретные виды работ и отдельные узлы, разговор быстро уходит в пустые формулы вроде «дом почти готов» или «все можно быстро доделать». Здесь нужно было зафиксировать фактическое состояние домокомплекта, определить степень готовности по договору и отделить обычную незавершенность от дефектов, которые уже затрагивают надежность и безопасность конструкций.
До подписания актов похожие риски можно отловить на приёмке: в статье «Что проверить при приёмке коттеджа» показано, какие элементы дома стоит смотреть до того, как спор уйдёт в претензию или суд.
Какие документы я изучил до осмотра
В этом деле я исследовал результат работ по изготовлению, доставке и установке домокомплекта КД/ДК-88 размером 8×11 с двумя террасами. Объект расположен в Приозерском районе Ленинградской области, вблизи посёлка Берёзовка. Речь шла о конкретном результате по договору, а не просто о строительстве частного дома в целом.
До выезда на объект я изучил материалы, которые передали для исследования:
- копию договора изготовления, доставки и установки домокомплекта;
- копию расписки;
- материалы фото- и видеофиксации на электронном носителе.
Это был достаточный стартовый комплект для первичной проверки. По договору, расписке и фотофиксации можно было определить, что подрядчик должен был передать заказчику, в какой комплектации и с чем сравнивать состояние домокомплекта на участке.
Когда спор идёт не о качестве в целом, а о составе выполненного, важен проверяемый объём работ. Такая же логика применялась в заключении эксперта по стоимости выполненных работ по ремонту квартиры.
Из договора следовало, что подрядчик обязался выполнить полный цикл работ по домокомплекту. В спецификации были указаны:
- монтаж винтовых свай;
- монтаж обвязки свайного поля брусом 150×100 с обработкой битумной мастикой и установкой сетки от грызунов;
- доставка домокомплекта и материалов;
- работа манипулятора;
- монтаж панелей пола, стен, перегородок и потолков;
- монтаж стропильной системы и металлических элементов крыши с мембраной;
- отделка фронтонов и боковых частей стропильной системы;
- установка пластиковых двухкамерных окон REHAU с режимом проветривания;
- установка входной двери с терморазрывом;
- монтаж окон и двери;
- установка наружных и внутренних фасонных элементов;
- финишная покраска наружной отделки в синий цвет;
- финишная покраска внутренней отделки в белый цвет;
- установка наружных соединительных и угловых элементов отделки;
- монтаж пола из ламината с наличниками.
Отдельно договор фиксировал и срок, и цену. Общая стоимость составляла 3 800 000 рублей, а весь объём работ подрядчик должен был выполнить в течение 30 рабочих дней после 90% оплаты полной стоимости договора. При этом подрядчик обязался сдать результат качественно, в полном объёме и с соблюдением действующих норм и правил.
План домокомплекта с размерами был приложен к договору. Именно по нему можно увидеть исходную конфигурацию объекта и состав помещений.
Как проходил осмотр домокомплекта на участке
На объект я выехал 9 июля 2025 года. Осмотр шел с 13:00 до 16:30 при естественном освещении в присутствии представителя заказчика. Подрядчика о времени осмотра уведомили заранее, но на участок он не приехал, поэтому фактическое состояние домокомплекта я фиксировал в том виде, в котором оно было на дату осмотра.
Сначала я посмотрел объект в целом, чтобы понять общую степень готовности дома, увидеть, какие работы действительно выполнены, а какие остались незавершенными. На этом этапе важно сразу оценить не отдельный дефект, а общую картину по дому, террасам, кровле, фасадам и основанию.
После общего осмотра я перешел к более детальной проверке наружной части дома. Здесь я смотрел состояние фасадов, террас, свесов кровли, основания, нижней обвязки и других наружных элементов, потому что именно снаружи хорошо видно и степень завершенности работ, и часть грубых монтажных нарушений.
Во время осмотра я не ограничивался визуальной оценкой. По объекту выполнял контрольные замеры комплектом ВИК, двухметровым строительным уровнем и метрической линейкой, а все существенные участки фиксировал на камеру. Именно такая связка и нужна в подобных спорах: сначала увидеть узел на месте, потом проверить его положением, размером или отклонением, а затем закрепить это в фотофиксации.
Все дальнейшие выводы по статье привязаны именно к состоянию объекта на 09.07.2025. Это важно, потому что спор в таких делах всегда крутится вокруг одного вопроса: что реально находилось на участке в день осмотра, а не что стороны потом стали говорить друг о друге.
Что показал осмотр дома на участке
Осмотр сразу снял главный вопрос по этому спору. На дату исследования домокомплект не был доведен до завершенного состояния, а сами работы на объекте уже не велись. Полностью выполненными без оговорок можно было считать только доставку домокомплекта и материалов и работу манипулятора. Остальные позиции подрядчик либо не завершил, либо выполнил не в полном объеме, либо сделал с нарушениями.
Ниже сводная таблица по тем работам, которые были предусмотрены договором, и по их фактическому состоянию на момент осмотра.
| Вид работ по договору | Статус |
|---|---|
| Монтаж винтовых свай | Выполнено с нарушениями |
| Монтаж обвязки свайного поля деревянным брусом 150×100 с обработкой битумной мастикой и установкой сетки от грызунов | Выполнено частично |
| Доставка домокомплекта и материалов для монтажа до места монтажа | Выполнено |
| Работа манипулятора для монтажа домокомплекта | Выполнено |
| Монтаж панелей пола, стен, перегородок и потолков | Выполнено с нарушениями |
| Монтаж стропильной системы и металлических элементов крыши с мембраной | Не завершено |
| Отделка фронтонов и боковых частей стропильной системы строганной крашеной доской | Не выполнено |
| Пластиковые двухкамерные окна REHAU с режимом проветривания | Не соответствует договору |
| Входная дверь с терморазрывом | Не соответствует договору |
| Монтаж окон и двери | Не завершено |
| Установка наружных и внутренних фасонных элементов окон и дверей | Не выполнено |
| Финишная покраска наружной отделки синего цвета | Не завершено |
| Финишная покраска внутренней отделки белого цвета | Не завершено |
| Установка наружных соединительных и угловых элементов отделки | Не выполнено |
| Монтаж пола из ламината с установкой наличников | Не выполнено |
Дальше я последовательно покажу, что было видно при общем осмотре, что обнаружилось по основанию и обвязке, в каком состоянии находились пол, стены, кровля, окна, дверь и внутренняя отделка.
Какие нарушения я выявил по винтовым сваям и обвязке дома
Проблемы на этом объекте начались с основания. При осмотре я установил, что винтовые сваи смонтированы с нарушением шага, а их количества недостаточно для уже собранного обвязочного пояса. Для такого домокомплекта это принципиально, потому что ошибки на этом уровне дальше отражаются на работе всей несущей схемы.
На поверхности бруса обвязки были заметны светлые пятна налёта, похожие на биопоражение древесины. Для обвязки это не косметический дефект: материал работает в нижнем несущем узле и остаётся в зоне риска по увлажнению.
Как оценивать намокшую и поражённую древесину ещё до завершения стройки, я отдельно разбирал в статье «Что делать, если пиломатериалы намокли, почернели или покрылись плесенью».
Зафиксированные деформации обвязки и нарушения в нижней несущей части дома противоречат требованиям СП 55.13330.2016. Основания и несущие конструкции должны обеспечивать надежность здания, исключать разрушения, повреждения и недопустимое ухудшение эксплуатационных свойств. По результатам осмотра этот узел таким требованиям не соответствовал.
Что я выявил при осмотре пола, перекрытия и геометрии стен
На лагах деревянного перекрытия я дополнительно зафиксировал биоповреждения и насекомых. Здесь вопрос уже не только в монтаже: повреждён сам материал, который должен работать внутри закрытого перекрытия.
Если нужно оценить исходное качество древесины, близкая ситуация разобрана в заключении экспертизы пиломатериалов, досок и бруса, где проверялись дефекты материала в поставленной партии.
На этом нарушения не заканчивались.
Отдельно я проверил, как смонтированный каркас стен стоит относительно обвязочного пояса из бруса. Здесь тоже выявились серьезные отклонения. По одному участку общее смещение стены составило больше 60 мм: в одном углу было более +30 мм, в другом минус 30 мм.
В итоге по этому узлу я увидел сразу несколько связанных между собой проблем. Пол собран с уступами, внутри перекрытия есть влага, на древесине уже появились признаки биопоражения, а стены стоят со смещением относительно нижней несущей части дома. Для такого объекта это уже говорит о системных ошибках монтажа.
Сходный по логике разбор деревянного дома есть в заключении экспертизы качества строительства дома из бревна: там дефекты также оценивались не по одному признаку, а по совокупности нарушений в материале, подгонке и сопряжении элементов.
Какие дефекты я обнаружил по кровле и стропильной системе
Когда я перешел к осмотру крыши, стало видно, что этот этап подрядчик тоже не завершил. Металлические элементы кровли были смонтированы, но сама стропильная система и примыкающие части дома оставались недоделанными.
Свесы, фронтоны и боковые части стропильной системы на момент осмотра остались без отделки строганной крашеной доской. То есть эту часть работ подрядчик просто не выполнил.
Что я выявил при осмотре окон, входной двери и дверных проемов
Когда я перешел к окнам и входной двери, выяснилось, что подрядчик отступил от договора сразу по нескольким позициям. По условиям договора на объекте должны были стоять пластиковые двухкамерные окна REHAU с режимом проветривания. По факту были смонтированы окна IVAPER без режима проветривания. Уже одного этого достаточно, чтобы говорить о несоответствии результата условиям договора.
Кроме того, окна не были доведены до рабочего состояния. Оконная фурнитура, в том числе ручки открывания, отсутствовала, поэтому пользоваться окнами по назначению было нельзя.
С входной дверью ситуация оказалась такой же. Ручки на двери отсутствовали, а наличие терморазрыва в конструкции я не подтвердил. Сам монтаж входной двери тоже не был завершен, поэтому этот элемент нельзя считать выполненным так, как это было предусмотрено договором.
На этом проблемы не закончились. Межкомнатные двери на объекте вообще не были установлены. В проемах отсутствовали и коробки, и дверные полотна.
Отдельно я проверил узлы примыкания окон и двери к проёмам. Полноценного монтажного шва здесь не было: подрядчик фактически ограничился одним слоем монтажной пены и не устроил ни наружный водоизоляционный слой, ни внутренний пароизоляционный. Такой узел не защищает шов от влаги, ветра и других внешних воздействий и не соответствует требованиям ГОСТ 30971-2012 и ГОСТ 23166-99.
Наружные и внутренние фасонные элементы окон и дверей из строганной крашеной доски подрядчик тоже не установил. В результате по этому блоку работ я увидел не просто отдельные недоделки, а целый набор существенных нарушений: вместо предусмотренных договором окон установлены другие, монтаж окон и двери не завершен, межкомнатные двери отсутствуют, а узлы примыкания проемов выполнены неправильно.
Какие дефекты я выявил по наружной и внутренней отделке дома
Когда я перешел к отделочным работам, стало видно, что дом не доведен до предусмотренного договором состояния ни снаружи, ни внутри.
Финишная покраска наружной отделки синего цвета не была завершена. Это видно по общему состоянию фасада и по тому, что часть элементов дома на момент осмотра вообще оставалась недоделанной. Не были завершены фронтоны, боковые части стропильной системы, ограждающие конструкции террас и оформление оконных и дверных проемов. Пока эти узлы не закончены, финишную наружную покраску нельзя считать выполненной полностью.
Отдельно я зафиксировал, что наружные соединительные и угловые элементы отделки из вертикальной строганой доски не были установлены. То есть наружная отделка оставалась незавершенной не только по окраске, но и по составу самих работ.
По внутренней отделке ситуация была такой же. Финишная покраска имитации бруса белого цвета внутри дома также не была завершена. На уже окрашенных поверхностях я увидел непрокрасы, повреждения покрасочного слоя и повреждения самих элементов внутренней отделки. Иными словами, даже там, где работы формально были начаты, качественного законченного результата не было.
На потолке и других окрашенных поверхностях были заметны пятна в местах крепежа. Такие следы связаны с коррозией металлических гвоздей и указывают на продолжительное намокание отделки. Для внутренней чистовой поверхности это уже прямой признак ненормального состояния конструкций.
Кроме того, внутри дома оставались вообще неокрашенные участки.
На части этих неокрашенных поверхностей я дополнительно зафиксировал следы грибковых поражений. Для нового дома это особенно тревожный признак, потому что речь идет уже не просто о незавершенной отделке, а о повреждении материалов.
Пол также не был доведен до предусмотренного договором состояния. Ламинат на момент осмотра не был уложен, наличники не установлены.
В итоге по отделке картина была простой и для спора очень показательной. Наружная отделка не завершена, внутренняя тоже не доведена до предусмотренного договором состояния, а часть уже смонтированных и окрашенных элементов имеет повреждения, следы увлажнения и биопоражения. То есть объект остался не только недоделанным, но и частично поврежденным еще до завершения всех работ.
Почему часть нарушений я отнес к критическим дефектам
На этом объекте я увидел нарушения, которые затрагивают не отделку и не внешний вид дома, а состояние древесины, работу несущих узлов и безопасность эксплуатации. Поэтому часть дефектов нельзя было оценивать как обычные недоделки. Такие выводы соотносятся с требованиями 384-ФЗ «Технический регламент о безопасности зданий и сооружений».
Первый такой блок связан с обвязкой свайного поля. Брус 150×100 работал в зоне открытого воздуха и возможного увлажнения, но подрядчик не обеспечил его нормальную защиту. Для несущего деревянного элемента с признаками биопоражения это нарушение п. 6.11 СП 28.13330.2012: древесина не должна быть поражена грибами и насекомыми, а конструкции должны быть защищены от атмосферной влаги.
Второй критический дефект касается схемы монтажа обвязки. Соединения несущих балок подрядчик выполнил между опорами, хотя по п. 6.2.6.2 СП 31-105-2002 такие стыки должны располагаться над опорой. С этой ошибкой были связаны зафиксированные в местах сопряжений сверхнормативные прогибы.
Для дома это уже опасная ситуация. Когда нижняя несущая часть собрана по неправильной схеме, конструкция начинает работать с деформациями, а дом теряет расчетную пространственную жесткость. Это противоречит п. 6.3 и п. 6.4 СП 55.13330.2016, которые требуют, чтобы основания и несущие конструкции обеспечивали надежность дома и исключали недопустимые повреждения в процессе эксплуатации.
Отдельно отмечу влагу в перекрытии пола и биоповреждения деревянных элементов. Под утеплителем я выявил значительное количество влаги, а на материалах пола и перекрытия были видны следы поражения. Такое состояние нарушает требования п. 9.19 СП 55.13330.2016, по которому ограждающие конструкции должны быть защищены от накопления влаги и проникновения воды.
Для деревянного дома это уже не частный дефект одного участка. Влага, грибок и биопоражения снижают долговечность материалов, ухудшают работу узлов и со временем ведут к дальнейшему разрушению конструкций. Поэтому в заключении эти нарушения и были отнесены к существенным, а часть из них к критическим дефектам.
К какому выводу я пришел по результатам строительной экспертизы
По результатам осмотра и анализа материалов я пришел к двум основным выводам.
На дату исследования работы по домокомплекту не были завершены и на объекте уже не велись. Подрядчик не передал заказчику готовый результат по договору, а оставил дом в незавершенном состоянии.
Та часть работ, которую подрядчик все же выполнил, не соответствовала ни условиям договора, ни обязательным нормативным требованиям. Нарушения я установил по основанию, обвязке, панелям пола, перекрытию, геометрии стен, кровле, окнам, двери и отделке. Часть этих дефектов затрагивает несущие конструкции, состояние древесины и общую надежность дома, поэтому они относятся к существенным, а часть из них к критическим.
Итог по этому объекту однозначный: домокомплект не завершен, а выполненный объем работ нельзя считать качественным и соответствующим договору и нормативным требованиям.
Как такое заключение помогает в споре с подрядчиком
В строительном споре заказчику недостаточно понимать, что дом недоделан или собран плохо. Пока это только личная оценка, подрядчик почти всегда отвечает одинаково: часть работ еще можно закончить, дефекты несущественные, а объект в целом готов. Заключение убирает этот простор для разговоров и переводит спор в плоскость конкретных фактов.
После такого исследования у заказчика появляется технически выстроенная позиция. Уже можно предметно показать, какие работы подрядчик не завершил, где он отступил от договора, какие узлы смонтировал с нарушениями и какие дефекты уже влияют на надежность и безопасность эксплуатации. Для претензии, переговоров и суда это принципиально.
Не менее важно и то, что заключение фиксирует состояние объекта на конкретную дату. В строительных спорах это одна из ключевых вещей. Пока нет осмотра, замеров и фотофиксации, подрядчик может ссылаться на последующие изменения, на вмешательство заказчика или на то, что недостатки появились позже. Когда состояние дома уже зафиксировано специалистом, спор становится гораздо более предметным.
Дальше заказчик может использовать это заключение как рабочий инструмент. С ним можно готовить мотивированную претензию, требовать устранения недостатков, завершения работ, уменьшения цены, возврата части уплаченных денег или возмещения расходов на исправление дефектов. Если подрядчик не реагирует, именно это заключение обычно становится базой для дальнейшего судебного спора и для постановки вопросов уже в рамках судебной экспертизы.
Если у вас похожая ситуация, не тяните до момента, когда подрядчик начнет переделывать объект, убирать следы дефектов или просто исчезнет со связи. Пришлите мне фотографии, договор, переписку и то, что у вас есть по объекту. Я посмотрю материалы и скажу, есть ли смысл выходить на строительную экспертизу, что именно нужно фиксировать в первую очередь и как такую ситуацию правильно готовить к претензии или суду.
Нужна экспертиза “под ключ”, как в образце?
Проведу строительно-техническую экспертизу: выявлю дефекты, причины, объёмы и качество работ, при необходимости рассчитаю стоимость устранения.
01. Это реальное заключение или шаблон?
Это образец реального формата заключения: структура, логика исследования, фотофиксация, выводы и обоснование. Персональные данные и часть исходных сведений могут быть скрыты.
02. Можно ли сделать заключение “точно как здесь”, но по моему объекту?
Да. Итоговый документ будет в аналогичной структуре: описание объекта, фиксация дефектов, анализ причин, ссылки на нормативы, выводы и приложения с фото.
03. Подойдёт ли заключение для суда?
Если цель судебная, это учитывается заранее: формулировки, обоснование, приложения, перечень исходных данных. При необходимости готовлю документ в формате судебной строительно-технической экспертизы.
04. Какие документы нужны для начала работы?
Обычно достаточно того, что есть: договор/смета/акты, переписка, проект/планы (если есть), фото/видео. Если чего-то не хватает, подскажу, что желательно добавить под вашу задачу.
05. Вы выезжаете на объект или можно дистанционно?
По большинству задач нужен выезд (осмотр и фотофиксация). Дистанционный разбор возможен как консультация или предварительная оценка материалов.
06. Сколько времени занимает подготовка заключения?
Зависит от объёма объекта и материалов. Сроки обозначаю после первичного изучения задачи и согласования объёма работ.
07. Можно ли посчитать стоимость устранения дефектов/ущерба?
Да, при необходимости выполняю расчёт стоимости восстановительного ремонта или устранения выявленных недостатков.
08. Делаете ли вы экспертизу объёмов и стоимости выполненных работ?
Да. Могу проверить фактические объёмы, качество, соответствие смете и определить стоимость выполненных работ/расхождения.
09. Что именно фиксируется на осмотре?
Визуальные дефекты, узлы и примыкания, следы протечек/трещины/деформации, качество работ и материалов, фотофиксация. При необходимости применяются измерения и инструментальные методы в рамках задачи.
10. Вы работаете только по Санкт-Петербургу?
Базово Санкт-Петербург и область. По выездам в другие регионы зависит от задачи и загрузки.
11. Можете ли вы дать рецензию на чужое заключение эксперта?
Да. Если есть сомнения в выводах или методике, подготовлю рецензию с указанием ошибок/пробелов и корректных подходов.
12. Как быстро можно получить предварительное понимание, стоит ли делать экспертизу?
Можно начать с короткого описания ситуации и пары фото. Подскажу, какой вид экспертизы нужен и какой результат реально получить.
Похожие образцы заключений
Заключение экспертизы модульного здания из блок-контейнеров
Кровля и фасады
Заключение экспертизы качества строительства дома из бревна
Частные дома и коттеджи
Заключение эксперта по внешней экспертизе работ по благоустройству по 44-ФЗ
44-ФЗ / 223-ФЗ (контракты)
Заключение эксперта по качеству дороги из железобетонных плит
Дороги и благоустройство
Заключение экспертизы пиломатериалов по делу о некачественной поставке
Строительные материалы
Заключение экспертизы по строительству дома (коттедж) по ГОСТ и СНиП
Частные дома и коттеджи
Заключение экспертизы машино-места в подземном паркинге
Квартиры и МКД
Заключение строительно-технической экспертизы каркасного дома
Частные дома и коттеджи
Рецензия на заключение специалиста по травмобезопасному покрытию площадок
Рецензии на экспертизы
Заключение экспертизы покрытия из резиновой крошки в парке с анализом причин повреждений
Дороги и благоустройство
Заключение экспертизы по дефектам покрытия из резиновой крошки
Дороги и благоустройство
Заключение строительной экспертизы по ремонту квартиры
Квартиры и МКД
Заключение внешней экспертизы по 44-ФЗ по ремонту дороги на примере муниципального контракта
44-ФЗ / 223-ФЗ (контракты)






































































































































