Кратко о заключении
Ленинградская область
Дом из бревна
17.08.2021
30 дней
64 листа
68 фото
Когда ко мне обращаются по бревенчатым домам, разговор почти всегда начинается одинаково. Заказчик показывает трещины на торцах, потемнения на древесине, зазоры в углах и говорит: «Подрядчик уверяет, что так и должно быть, дерево же живое». Частично это правда: древесина действительно работает, усыхает и меняет геометрию. Но как только появляются измеримые отклонения от проекта, видимые пороки материала, признаки биопоражения или нарушения в узлах, это уже не «особенности дерева», а качество работ и качество применённых материалов.
В этом заключении я проводил строительно-техническую экспертизу качества строительства частного дома из бревна. Нужно было зафиксировать состояние конструкций, выполнить контрольные замеры, сопоставить дефекты с договором, проектом и нормами, а затем сформулировать выводы для переговоров с подрядчиком или судебного спора. В таких делах следует отделить рабочее поведение древесины от дефекта. Эту границу я подробно разобрал в статье о трещинах в бревенчатом доме: когда раскрытие ещё допустимо, а когда уже влияет на паз, чашку, продувание и долговечность стены.
Что я проверял и какой вопрос решал в экспертизе
В этом деле объектом исследования был частный жилой дом из бревна, расположенный в Ленинградской области, Выборгский район. Экспертизу я выполнял по обращению заказчика, в рамках спора о качестве выполненных работ по договору строительного подряда.
Перед выездом на объект я изучил представленные материалы: договор подряда с приложениями и проектную документацию (в том числе архитектурные решения). Для меня это принципиально: сначала нужно понять, что именно было согласовано сторонами и какие требования к материалам и работам были закреплены в проекте и договоре, а уже потом сравнивать это с тем, что выполнено фактически.
Вопрос, который я решал в экспертизе, звучал так:
Соответствует ли качество выполненных работ условиям договора и проектной документации, а также требованиям действующих нормативных документов (ГОСТ, СНиП/СП)?
Проверка на объекте включала три блока:
- Материалы стен и их параметры.
Я оценивал бревна как строительный материал: фактические размеры (в первую очередь диаметр), наличие пороков древесины, трещин, механических повреждений, а также признаки биопоражения (плесень, грибные окраски, синева) и следы повреждения насекомыми. - Качество выполнения узлов и сопряжений.
Отдельно смотрел соединения и перевязку венцов, подгонку элементов, наличие зазоров и отклонений, которые влияют на продувание, увлажнение и долговечность конструкций. - Конструктивные элементы помимо стен.
Проверял отдельные элементы кровельной/стропильной системы и характер их опирания и крепления, поскольку дефекты там напрямую влияют на безопасность и эксплуатационные риски.
Дальше обследование строилось по цепочке: факт на объекте → замер и фотофиксация → сравнение с проектом и нормами → вывод о соответствии. Такой же подход нужен при комплексной проверке дома: в заключении экспертизы коттеджа по ГОСТ и СНиП я сопоставлял фактическое состояние конструкций с проектными решениями, нормативными требованиями и эксплуатационными рисками.
Как проходил осмотр деревянного дома
Осмотр я выполнил 17.08.2021. Работал на объекте с 11:00 до 13:10. На месте присутствовали представители сторон, поэтому все наблюдения и замеры делались в понятном, проверяемом формате: что измерено, где измерено, как зафиксировано.
На момент осмотра дом представлял собой бревенчатое строение в стадии строительства: с выполненной кровлей и террасой, без установленного заполнения проёмов. Часть оконных проёмов была временно закрыта листами/щитами, на участке находились складированные брёвна и пиломатериалы. На одной из сторон были смонтированы леса, часть стен закрыта защитным материалом.
Для контрольных измерений использовал комплект ВИК, строительный уровень и фотокамеру. Замеры выполнял по правилам ГОСТ 26433.0-85, чтобы каждое отклонение было привязано к конкретной точке и способу измерения. В споре работает воспроизводимый результат, который можно проверить повторно.
Дальше я действовал по простой схеме. Сначала фиксировал узел или участок, который вызывает вопросы, затем делал замер, после чего сразу выполнял фотофиксацию так, чтобы на снимке было видно и место, и сам дефект, и привязку к измерению. В результате получилась фототаблица, где каждый кадр работает как доказательство.
Что было предусмотрено проектом
За основу я взял проектную документацию, предоставленную на исследование. В ней объект обозначен как бревенчатое строение. В проекте указаны основные строительные показатели дома:
- площадь застройки: 99,4 м²
- общая площадь: 133,1 м²
Эти значения дают понимание габаритов строения и помогают корректно соотносить планировочные решения с конструкциями.
Далее в проекте зафиксированы основные конструктивные решения. Фундамент предусмотрен как плиты толщиной 250 мм с ростверком толщиной 200 мм. Отдельно выделены несущие конструкции: несущие стены должны выполняться из бревна ручной рубки диаметром 260–300 мм. Этот диапазон я использую при контрольных замерах брёвен на объекте: измеряю фактический диаметр и фиксирую значения в привязке к конкретным участкам стен.
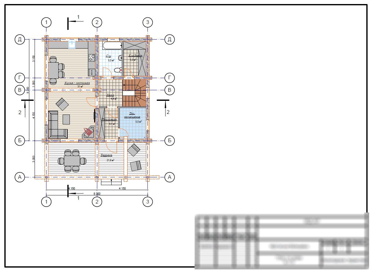
Для понимания общей компоновки дома в проекте есть 3D-модель. А для привязки наблюдений к конкретным помещениям и стенам используется план 1-го этажа.
Что именно я считаю дефектом, а что повреждением
В экспертизе я всегда разделяю два понятия: дефект и повреждение. Снаружи они могут выглядеть похоже, но смысл разный, и от этого зависит, как дальше формулируются выводы и что требовать от подрядчика.
Дефект – это то, что появляется из-за материалов или технологии работ. Он связан с тем, как дом построен: как подобраны брёвна, как выполнена подгонка, какие допуски выдержаны, как защищена древесина. Дефект фиксируется через параметры: размер, место, характер, повторяемость. Его задача в заключении одна: показать несоответствие требованиям, которые были заложены в договоре, проекте или нормативах.
Повреждение – это результат воздействия на уже выполненную конструкцию. Причина не в том, как элемент изготовили, а в том, что с ним произошло потом: механическое воздействие, увлажнение, биопоражение. Повреждение тоже измеряется и фиксируется, но логика другая: я устанавливаю признаки и последствия, а дальше смотрю, с чем это связано и что могло к этому привести.
Чтобы было понятнее на практике, приведу простую привязку к этому дому.
Трещины в бревне могут быть и дефектом, и повреждением, в зависимости от параметров и причины. Я не пишу “трещины есть”, я фиксирую длину, раскрытие, глубину, расположение. После этого становится ясно, выходит ли картина за пределы допустимого и как это влияет на эксплуатацию.
Плесень, синева и грибные окраски я рассматриваю как повреждение древесины. Их наличие показывает, что материал находился во влажностном режиме, опасном для дальнейшей эксплуатации. В экспертизе необходимо установить не только сам налёт, но и причину увлажнения: хранение, отсутствие защиты, ошибки монтажа или попадание воды в конструкцию. Что делать до закрытия деревянных элементов, я отдельно разобрал в статье о намокших пиломатериалах, почернении и плесени.
Зазоры в соединениях, плохая подгонка в узлах, несоответствие диаметра брёвен проекту – это дефекты. Они возникают на этапе строительства. Их нельзя “объяснить временем”: они либо есть, либо их нет, и они фиксируются измерениями.
Такое разделение нужно не для терминологии. Оно нужно, чтобы в заключении было чётко: где проблема заложена в работах, а где уже проявились последствия, которые требуют устранения причины, а не маскировки.
Что я обнаружил на объекте: список нарушений и дефектов
Ниже собраны дефекты, которые я обнаружил при обследовании дома. Я буду идти по группам: сначала то, что относится к брёвнам и их параметрам, затем узлы и соединения, после этого признаки биопоражения и отдельные замечания по элементам кровли.
Сразу оговорю важный момент для владельца дома. Одно дело, когда дефект единичный и локальный. Другое, когда один и тот же тип нарушения повторяется в разных местах: это уже характеристика качества работ в целом. Поэтому дальше я показываю не только сами недостатки, но и их логику: где именно они проявились и какие узлы попадают в зону риска.
По проектной документации несущие стены предусмотрены из бревна ручной рубки диаметром 260–300 мм. По фактическим замерам в конструкции несущих стен применены брёвна диаметром 250 мм и 315 мм.
На боковой поверхности брёвен наружных и внутренних стен имеются многочисленные глубокие несквозные трещины. Длина отдельных боковых трещин достигает до 850 мм. На некоторых брёвнах суммарная длина боковых трещин составляет 1,2 длины детали.
На торцах брёвен наблюдаются торцевые трещины, не выходящие на боковую поверхность; на торцах отдельных брёвен их суммарная длина превышает диаметр бревна.
Также зафиксированы глубокие боковые трещины, выходящие и на торец, и на боковую поверхность; на торцах некоторых брёвен их суммарная длина превышает 360 мм, что больше толщины бревна более чем в 1,2 раза.
Ширина раскрытия трещин на части брёвен составляет 10–15 мм. По договору строительного подряда №436 от 11.05.2020 максимальное раскрытие трещин в бревне не должно превышать 12 мм.
Параметры трещин на части брёвен не соответствуют требованиям табл. 2 ГОСТ 11047-90:
- несквозные трещины не допускаются суммарной длиной более 300 мм;
- торцевые трещины не допускаются суммарной длиной более 1/2 диаметра бревна;
- пластевые трещины не допускаются суммарной длиной более длины детали.
Глубина боковых трещин усушки на части брёвен составляет более 1/2 соответствующего торца. По п. 4.1, табл. 3 ГОСТ 9463-2016 глубина таких трещин допускается не более 1/20 соответствующего торца.
Если спор начинается ещё до сборки дома, проверяют уже не готовую конструкцию, а саму партию материала. В заключении экспертизы пиломатериалов я оценивал документы о качестве, маркировку, влажность, трещины, обзол, червоточины и гниль.
На части брёвен выявлена прорость. По ГОСТ 2140-81 «прорость» – это зарастающая или заросшая рана с радиальной щелевидной полостью. Обычно такая полость заполнена остатками коры и омертвевшими тканями. Порок формируется ещё в растущем дереве и может сопровождаться изменениями прилегающей древесины: засмолком, грибными ядровыми пятнами, полосами и ядровой гнилью.
На части брёвен выявлены механические повреждения, допущенные при обработке древесины, в виде вырывов. По ГОСТ 2140-81 «вырыв» – это углубление на поверхности лесоматериала с неровным ребристым дном, которое образуется из-за местного удаления древесины при заготовке или обработке. Такие повреждения часто встречаются вместе с задирами, сучками, наклоном волокон, свилеватостью и завитками.
На брёвнах я зафиксировал многочисленные следы видимых грибных поражений древесины.
Первый тип поражений — это плесень. По ГОСТ 2140-81 «плесень на древесине» — это грибница и плодоношения плесневых грибов на поверхности древесины, в виде отдельных пятен или сплошного налёта. В примечании ГОСТ указано, что плесень чаще появляется на сырой заболони при хранении лесоматериалов и вызывает поверхностное окрашивание древесины в разные оттенки (сине-зелёный, голубой, зелёный, чёрный, розовый и другие) — в зависимости от окраски спор и грибницы, а также от выделяемого пигмента.
Второй тип — это заболонные грибные окраски и синева древесины. По ГОСТ 2140-81 «заболонные грибные окраски» — это ненормально окрашенные участки заболони без понижения твёрдости древесины, возникающие в срубленной древесине под воздействием деревоокрашивающих грибов, не вызывающих образования гнили.
В примечаниях ГОСТ отдельно указано: такие окраски распространяются вглубь древесины от торцов и боковых поверхностей. На торцах выглядят как пятна разной величины и формы или как сплошное поражение заболони, на боковых поверхностях — как вытянутые пятна, полосы или сплошное поражение заболони. Встречаются у всех пород, но чаще у хвойных.
«Синева древесины» — это серая окраска заболони с синеватыми или зеленоватыми оттенками.
Глубина заболонных грибных окрасок на части брёвен по радиусу составляет более 2/10 диаметра соответствующего торца. Это не соответствует п. 4.1 табл. 3 ГОСТ 9463-2016: заболонные грибные окраски (синева и цветные заболонные пятна) для древесины 1-го и 2-го сорта не допускаются, а для древесины 3-го сорта допускаются глубиной по радиусу не более 1/10 диаметра соответствующего торца.
Отдельно отмечаю: деревоокрашивающие грибы могут разрушать клеи и лакокрасочные покрытия. Заболонные грибные окраски не считаются фактором, который прямо снижает механические свойства древесины, но они ухудшают внешний вид и повышают водопроницаемость, из-за чего древесина может получать более серьёзные биоповреждения, включая гниль. Признаки её появления отмечены на части брёвен. По ГОСТ 2140-81 «гниль» — это ненормальные по цвету участки древесины с понижением твёрдости, возникающие под воздействием дереворазрушающих грибов.
Также на брёвнах были выявлены следы повреждения древесины дереворазрушающими насекомыми. По характерным признакам повреждений повреждение связано с жизнедеятельностью в древесине жуков-короедов.
Для несущих конструкций, работающих на открытом воздухе, п. 6.11 СП 28.13330.2012 требует применять древесину без поражения дереворазрушающими грибами и насекомыми, с влажностью, соответствующей условиям эксплуатации. Поэтому брёвна с признаками биопоражения и ходами насекомых нельзя оценивать только как внешний недостаток.
Также в ходе исследования я выявил дефекты монтажа и видимые недостатки качества лесоматериалов, применённых при устройстве стропильной системы.
Стропильная нога по оси 3 в осях В–Д смещена от вертикальной плоскости и не закреплена надлежащим образом. Из-за этого она не имеет нормального опирания на несущую стену по оси Д. Такой узел нельзя принимать как исправный: нарушается работа элемента стропильной системы, что противоречит требованиям СП 17.13330.2017 «Кровли».
Кроме того, на стропилах присутствует обзол. По ГОСТ 2140-81 «обзол» — это часть боковой поверхности бревна, сохранившаяся на обрезном пиломатериале или детали. В обзоле могут сохраняться условия для жизнедеятельности насекомых и микроорганизмов, что приводит к биологическим повреждениям древесины; признаки таких повреждений я фиксировал и на внутренних, и на несущих стенах.
Также в ходе обследования я зафиксировал ещё один простой, но показательный момент: торцовка брёвен в проёмах, а также на наружных и внутренних стенах не выполнена. Это хорошо видно по торцам и кромкам в местах примыканий и проёмов.
Многочисленные следы биопоражения и повреждения насекомыми показывают, что древесина не получила надлежащей защитной обработки. Антисептирование поверхности после оцилиндровки, предусмотренное ГОСТ 20022.6-93 «Защита древесины. Способы пропитки», фактически не подтверждается состоянием брёвен. В заключении это сформулировано как причина биопоражения деревоокрашивающими грибами и повреждения дереворазрушающими насекомыми.
Такое нарушение относится к критическим дефектам. По «Классификатору основных видов дефектов в строительстве и промышленности строительных материалов» критическим считается дефект, при котором конструкция становится функционально непригодной либо её использование может привести к снижению прочности, устойчивости и надёжности здания. Такой дефект нужно устранять до продолжения работ.
Близкая по последствиям ситуация показана в заключении по домокомплекту с существенными недостатками: там биопоражение древесины и нарушения несущих узлов также оценивались как признаки, влияющие на надёжность дома.
Итог экспертизы: дом не соответствует договору, проекту и нормам
На поставленный вопрос я ответил однозначно: качество работ по строительству бревенчатого дома требованиям не соответствует:
- Договору строительного подряда.
- Требованиям проектной документации индивидуального жилого дома.
- Нормативным требованиям ГОСТ и СНиП, действующим на территории РФ.
В заключении я отдельно указал, что нарушения относятся к требованиям следующих документов:
- СП 70.13330.2012 «Несущие и ограждающие конструкции»
- СП 28.13330.2012 «Защита строительных конструкций от коррозии»
- СП 17.13330.2017 «Кровли»
- ГОСТ 11047-90 «Детали и изделия деревянные для малоэтажных жилых и общественных зданий. Технические условия»
- ГОСТ 20022.6-93 «Защита древесины. Способы пропитки»
- ГОСТ 9463-2016 «Лесоматериалы круглые хвойных пород. Технические условия»
Это важная часть вывода, потому что она привязывает оценку качества к конкретным нормам, на которые дальше опираются в претензии и в суде.
Что делать владельцу после экспертизы
После того как заключение готово, главная ошибка владельца выглядит безобидно: “сейчас чуть-чуть подправим, чтобы не мозолило глаза”. На практике именно эти “чуть-чуть” потом мешают добиваться результата. Экспертиза уже зафиксировала состояние объекта. Дальше важно действовать так, чтобы выводы можно было использовать и в переговорах, и в претензии.
Первое, что я рекомендую: не вмешиваться в проблемные участки до того, как вы определились со сценарием. Любая конопатка “для вида”, шлифовка, обработка составами, подрезка, замена отдельных элементов меняют исходную картину. Если подрядчик начнёт спорить, вы рискуете услышать: “это уже после нас”. И спор будет не про качество работ, а про то, кто и когда что трогал.
Второй шаг: соберите документы в один комплект. Не “где-то в почте”, а в папку: договор, проект, заключение с фотоматериалами и приложениями. Это рабочий набор для претензии: требования к подрядчику должны быть конкретными и подтверждёнными документами. Если дом ещё не принят, проверку лучше провести до подписания актов. Для такой стадии я подготовил чек-лист приёмки коттеджа: документы, наружный контур, окна, кровля, вентиляция, инженерные системы и фиксация замечаний.
Дальше переходите к коммуникации. Позиция должна быть письменной. Формулировка простая: вы направляете подрядчику претензию и прикладываете заключение. Смысл претензии не в эмоциональном тексте, а в требовании: устранить выявленные нарушения качества работ по заключению экспертизы. Не “сделать красиво”, не “доделать”, а именно устранить то, что зафиксировано.
Следующий обязательный момент: получите ответ подрядчика в письменном виде. Согласие, отказ, “давайте скидку”, “это норма”, “мы не признаём”. Любой вариант вам полезен, потому что фиксирует позицию. Устные разговоры, даже самые убедительные, в споре не держатся.
После этого начинается практическая часть: план исправления должен закрывать причины, а не внешний вид. Если в заключении речь про защитную обработку древесины, грибные поражения, насекомых и дефекты узлов, то решение “прошлифовать и пропитать” без понятного объёма работ и контроля результата проблему не закрывает. Нужен понятный набор мероприятий, который можно проверить: что делаем, где делаем, какой результат считаем приемлемым, как фиксируем.
Если подрядчик идёт на исправление, держите процесс в управляемом виде: согласуйте перечень работ и контрольную фиксацию результата. Если подрядчик отказывается или затягивает, вы уже находитесь в рабочей позиции для следующего шага вместе с юристом: заключение есть, требования направлены, ответ получен.
Если у вас похожая ситуация и нужно зафиксировать дефекты так, чтобы это работало в переговорах и в суде, свяжитесь со мной. Я посмотрю договор, проект и фото, скажу, что критично зафиксировать и какие требования формулировать подрядчику.
Нужна экспертиза “под ключ”, как в образце?
Проведу строительно-техническую экспертизу: выявлю дефекты, причины, объёмы и качество работ, при необходимости рассчитаю стоимость устранения.
01. Это реальное заключение или шаблон?
Это образец реального формата заключения: структура, логика исследования, фотофиксация, выводы и обоснование. Персональные данные и часть исходных сведений могут быть скрыты.
02. Можно ли сделать заключение “точно как здесь”, но по моему объекту?
Да. Итоговый документ будет в аналогичной структуре: описание объекта, фиксация дефектов, анализ причин, ссылки на нормативы, выводы и приложения с фото.
03. Подойдёт ли заключение для суда?
Если цель судебная, это учитывается заранее: формулировки, обоснование, приложения, перечень исходных данных. При необходимости готовлю документ в формате судебной строительно-технической экспертизы.
04. Какие документы нужны для начала работы?
Обычно достаточно того, что есть: договор/смета/акты, переписка, проект/планы (если есть), фото/видео. Если чего-то не хватает, подскажу, что желательно добавить под вашу задачу.
05. Вы выезжаете на объект или можно дистанционно?
По большинству задач нужен выезд (осмотр и фотофиксация). Дистанционный разбор возможен как консультация или предварительная оценка материалов.
06. Сколько времени занимает подготовка заключения?
Зависит от объёма объекта и материалов. Сроки обозначаю после первичного изучения задачи и согласования объёма работ.
07. Можно ли посчитать стоимость устранения дефектов/ущерба?
Да, при необходимости выполняю расчёт стоимости восстановительного ремонта или устранения выявленных недостатков.
08. Делаете ли вы экспертизу объёмов и стоимости выполненных работ?
Да. Могу проверить фактические объёмы, качество, соответствие смете и определить стоимость выполненных работ/расхождения.
09. Что именно фиксируется на осмотре?
Визуальные дефекты, узлы и примыкания, следы протечек/трещины/деформации, качество работ и материалов, фотофиксация. При необходимости применяются измерения и инструментальные методы в рамках задачи.
10. Вы работаете только по Санкт-Петербургу?
Базово Санкт-Петербург и область. По выездам в другие регионы зависит от задачи и загрузки.
11. Можете ли вы дать рецензию на чужое заключение эксперта?
Да. Если есть сомнения в выводах или методике, подготовлю рецензию с указанием ошибок/пробелов и корректных подходов.
12. Как быстро можно получить предварительное понимание, стоит ли делать экспертизу?
Можно начать с короткого описания ситуации и пары фото. Подскажу, какой вид экспертизы нужен и какой результат реально получить.
Похожие образцы заключений
Заключение эксперта по качеству дороги из железобетонных плит
Дороги и благоустройство
Заключение экспертизы модульного здания из блок-контейнеров
Кровля и фасады
Заключение внешней экспертизы по 44-ФЗ по ремонту дороги на примере муниципального контракта
44-ФЗ / 223-ФЗ (контракты)
Рецензия на заключение специалиста по травмобезопасному покрытию площадок
Рецензии на экспертизы
Заключение экспертизы машино-места в подземном паркинге
Квартиры и МКД
Заключение экспертизы покрытия из резиновой крошки в парке с анализом причин повреждений
Дороги и благоустройство
Заключение строительной экспертизы по ремонту квартиры
Квартиры и МКД
Заключение строительно-технической экспертизы каркасного дома
Частные дома и коттеджи
Заключение экспертизы по дефектам покрытия из резиновой крошки
Дороги и благоустройство
Заключение экспертизы пиломатериалов по делу о некачественной поставке
Строительные материалы
Заключение экспертизы качества строительства дома из бревна
Частные дома и коттеджи
Заключение экспертизы по строительству дома (коттедж) по ГОСТ и СНиП
Частные дома и коттеджи
Заключение эксперта по внешней экспертизе работ по благоустройству по 44-ФЗ
44-ФЗ / 223-ФЗ (контракты)






































































